Vielseitiges Mehrfamilienhaus mit 3 Wohneinheiten in herrlicher Aussichtslage
Objektart
Adresse
Objektdaten
Informationen
Ausstattung
Details
Das großzügige Mehrfamilienhaus befindet sich im beliebten Calwer Stadtteil Hirsau und bietet Ihnen vielfältige Nutzungsmöglichkeiten. Ob als Mehrgenerationshaus oder Kapitalanlage - die Optionen sind nahezu unbegrenzt!
Neben einem großen Grundstück in Hanglage bietet die Immobilie mit 3 größtenteils modernisierten Wohneinheiten reichlich Platz für eine vielfältige Nutzung. Jede der Wohnungen hat eine durchdachte Raumaufteilung und unterstreicht somit den einzigartigen Wohnkomfort. Von den großzügigen Fensterfronten über den Balkon bis hin zur Terrasse, die Immobilie besticht durch eine herrliche Aussichtslage mit schönem Weitblick über Hirsau und seine historischen Denkmäler.
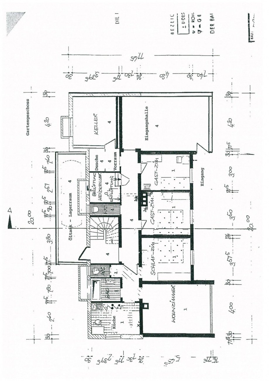
Das Gartengeschoss (UG) verfügt über eine ca. 82 m² große Einlieger-Terrassenwohnung mit separatem Eingang. Diese verteilt sich auf 4 Zimmer, Küche mit Einbauküche, Bad mit Wanne, WC und Waschbecken.
Im Erdgeschoss befindet sich die ca. 135 m² große Hauptwohnung bestehend aus einem geräumigen Schlafzimmer mit sep. kleinem Duschbad, 2 Kinderzimmern, großem Wohnzimmer mit großartiger Fensterfront, einem traumhaften Wintergarten/Atelier für die individuelle Nutzung, einer Küche mit Einbauküche, Essbereich und einem Tageslichtbad mit Dusche, WC und modernen Doppelwaschbecken. Hier ist der Neid garantiert: Der riesige Balkon zieht sich über Eck von der fast kompletten Westhauswand bis hin zur Südhauswand und lädt zum verweilen ein.
Das lichtdurchflutete Dachgeschoss mit ca. 70 m² verteilt sich auf insgesamt 4 Zimmer, Küche inkl. moderner Einbauküche, Tageslichtbad mit Wanne und WC. Die moderne Wohnung hat ebenfalls einen Balkon, dieser ist klein und nach Süden ausgerichtet.
Eine Garage mit einem zusätzlichen Stellplatz und eine Gartenhütte runden das Angebot ab.
Interesse? Dann überzeugen Sie sich selbst von den Vorzügen dieser vielseitigen Immobilie. Nicht lange warten, sondern Lange anrufen!
- Schöne und ruhige Aussichtslage
- Kunststofffenster doppelisolierverglast
- Balkon und Terrasse
- Massivbauweise
- Fliesenböden
- Laminatböden
- Einzelgarage und Stellplatz im Freien
- sonniger Gartenbereich
- Einbauküchen
- Diverse Keller- und Lagerräume
- Wasch- und Trockenraum
- Öl-Zentralheizung
Das Mehrfamilienhaus ist in Calw-Hirsau, einem Stadtteil der großen Kreisstadt Calw (ca. 23.000 Einwohner) in sonniger Hanglage gelegen. Hirsau mit ca. 2400 Einwohnern liegt im Nordschwarzwald, etwa 2 Kilometer nördlich der Kernstadt Calw und ist vorallem durch seine historische Klosterruine und dem damit verbundenen Calwer Klostersommer bekannt. Außerdem besticht der Stadtteil durch seine geographische Lage und Infrastruktur. Alle Geschäfte und Dienstleistungen des täglichen Bedarfs sind dabei vorhanden:
- Metzger
- Bäcker
- Café
- Gaststätten, Restaurants, Hotel
- Supermärkte
- Bank
- Friseur
- Arzt
- Tankstelle
Zudem ist Hirsau an die Regionalbahnlinie (Kulturbahn) Richtung Pforzheim und Tübingen angebunden, die unter der Woche halbstündlich in beide Richtungen fährt. Der nächste S-Bahnanschluss (S6) über Leonberg Richtung Stuttgart befindet sich in Weil der Stadt. Weil der Stadt erreichen Sie in ca. 10-15 Fahrminuten. Ab 2018 wird voraussichtlich die Hermann-Hesse-Bahn, mit der Verbindung Calw-Renningen, ins Leben gerufen und steigert damit die Attraktivität des Wohnstandorts Calw. Durch die Regionalbahnlinie ist der neue S-Bahnhaltepunkt Calw ZOB dann schnell und unkompliziert zu erreichen.
In Hirsau befinden sich zwei Kindergärten und eine Grundschule. Alle weiterführenden Schulen befinden sich direkt in Calw, nur wenige Fahrminuten entfernt. Weiterhin bietet Hirsau vielfältige Freizeitmöglichkeiten durch ein Kinderparadies, eine Minigolfanlage und diverse Sportvereine.
Das östlich von Calw-Hirsau gelegene Mittelzentrum, bestehend aus den Städten Böblingen und Sindelfingen, ist gut 25 Minuten entfernt. Die Landeshauptstadt Stuttgart erreichen Sie in ca. 40 Fahrminuten.
Ihr Ansprechpartner:
Kenan Erdogan
07051 - 979 26 36
0163 - 760 34 60
erdogan@langeimmo.de
Ansprechpartner
Mobil: +49 163 7603460
erdogan@langeimmo.de
Energieausweis (Bedarfsausweis)
230,60 kWh / (m²*a) Endenergiebedarf
230,60 kWh / (m²*a) Endenergiebedarf
230,60 kWh / (m²*a) Endenergiebedarf
Weitere Informationen
| Wesentlicher Energieträger | Öl |
| Energieausweis Ausstelldatum | 2016-12-18 |
| Energieausweis gültig bis | 30.11.2026 |
| Energieausweis Jahrgang | ab dem 1.5.2014 |
| Energieausweis Werteklasse | G |
| Energieausweis Baujahr | 1963 |
| Energieausweis Gebäudeart | Wohngebäude |
| Heizung | Zentralheizung |
| Befeuerung | Öl |
Ich bin damit einverstanden, dass mir Karten von Google angezeigt werden. Es gelten die Datenschutzbedingungen von Google (https://policies.google.com/privacy).
Ich bin einverstanden